佳信花園
全包裝修 平層 現代簡約 70㎡-100㎡
本案業主想要的家,簡約大氣,同時置入現代感的層次和質感,簡約但不簡單,內涵于內。但得一所歸宿,只和你一起慢慢變老…
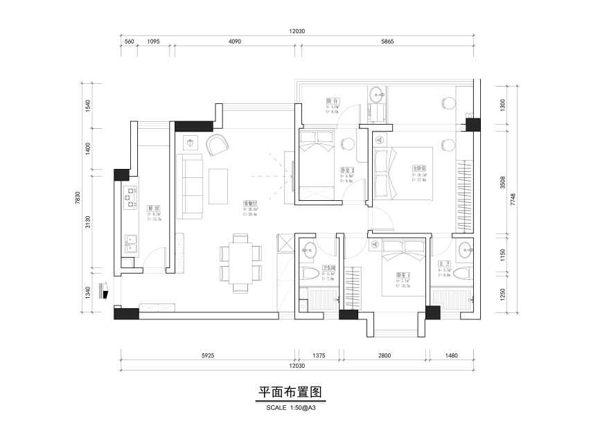
平面圖
![]()
![]()
客廳
![]()
主人房
![]()














